Pronájem obchodních prostor
Pardubice
Pronájem
29 000 Kč
za měsíc
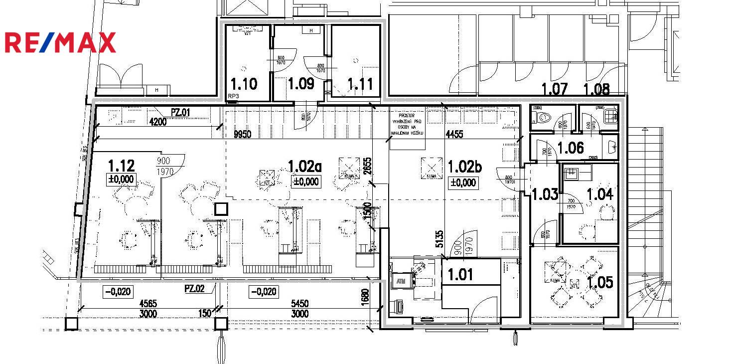
Nabízíme k pronájmu atraktivní obchodní prostory v ulici Jana Palacha v centru Pardubic. Přízemí bytového domu, hlavní silnice s velkým potenciálem oslovení klientů vhodnou reklamou, 122m2, velké výkladce, světlé prostory, dva samostatné vchody z ulice. V zázemí kuchyňka, WC, výlevka, skladové prostory. Vinyl, dlažba. Kryté parkovací stání ve vnitrobloku v ceně nájmu. Příprava na klimatizaci, zabezpečovací systém. Vysokorychlostní Internet. Nízké provozní náklady, dálkové vytápění /Opatovice/. Nájemné 32.000Kč/měs.(bez DPH), elektřina se převádí na nájemce, další služby /teplo, voda../ dle předmětu činnosti. Kauce. Provize RK. Volné od 01.06. 2026.












